小小小蜜桃免费观看高清电视剧,快乐新婚vcd,真实双人插画的视频如果有爱

上海嘉意机械装备有限公司

人力资源市场活动

首页 > 产品介绍

021-3900-3785

厚板激光分选方案

返回列表

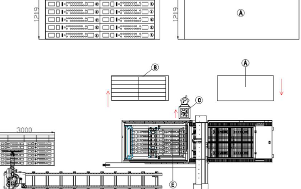
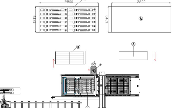
用于产品毛坯料的激光切割,根据生产订单从料库原材料自动上料、激光切割、智能分选堆垛、废料收集。实现智能仓储自动化上下料切割生产,智能管理,节约空间,解决物料生产管理无法实时监控、人工上下料劳动强度大、效率低、安全性差等问题。

  • 优势:
  • 可实现24小时无人生产,繁重的人工上下料将由自动上下料系统所取代,完成的工件无需手工分选,自动分选系统将自动为您完成,加工后剩余的废料及废料边也将被自动收集到专门的位置。

细节展示


详细参数


构成


1.Laser one 激光切割主机

2KW IPG高速光纤激光切割机

激光切割头沿着横向(Y轴)移动,数控系统控制送料夹钳带板材沿纵向(X轴)在带有毛刷的平板工作台上移动。 通过板材和激光切割头的复合运动即可实现在切割过程中机械手根据数控系统的程序实时分拣堆垛。

全自动卸料门能够自动卸载切割完成的板料


2.料库 3000×1500×L14 

合理使用空间,获得更多的生产制造空间

激光切割与料库通过总线控制及二级单独控制

高效安全的物料及生产管理系统

经常性库存清点功能,让您随时掌握库存情况


3.RS16机械手成品分选及堆垛系统

灵活快速可移动Kuka7轴机械手

切割好的板料可按设定的方案进行堆垛 

5个堆垛栈板 可放置工件的尺寸范围:250*250-600*1500


4.小件分选传输系统及CCD视觉系统

可对75*75-250*250尺寸范围内的激光切割成品进行分拣堆垛

CCD视觉系统,通过抓取激光切割成品的位置,与机械手进行通讯,实现机械手精准抓取工件


5.废料边框收集

通过可编程全自动卸料门收集废料框


相关产品

主站蜘蛛池模板: 秦皇岛市| 齐河县| 偃师市| 安远县| 仪征市| 临漳县| 宜阳县| 武定县| 滦平县| 江津市| 莎车县| 吐鲁番市| 奇台县| 屏东县| 岳阳市| 玛沁县| 洱源县| 宁远县| 米泉市| 靖江市| 巴东县| 旬邑县| 清镇市| 惠来县| 平原县| 盖州市| 仁怀市| 宜黄县| 阳谷县| 科技| 遂宁市| 阳高县| 临沭县| 蒙山县| 修文县| 咸阳市| 古丈县| 行唐县| 绥阳县| 芜湖市| 莎车县|